Exklusive Vollholz-Wohnung im Rohbau mit individuellem Gestaltungspotenzial
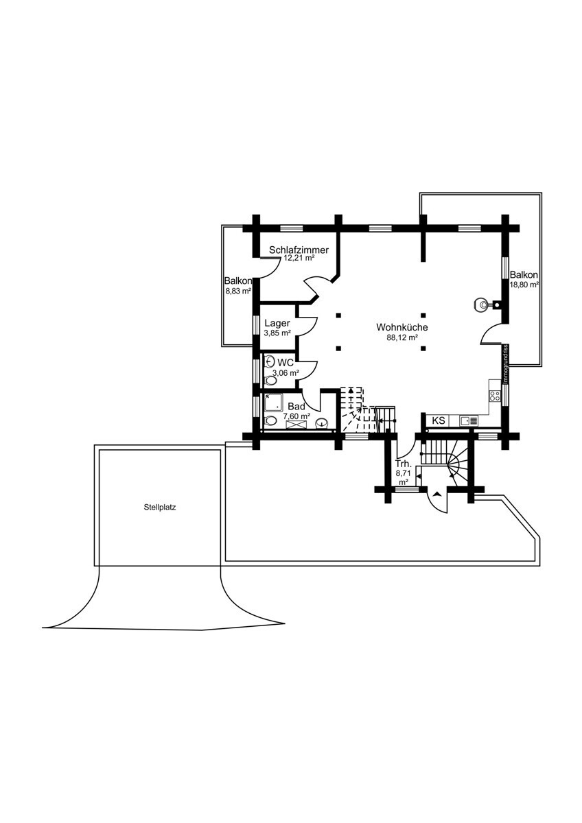
– Diese Wohnung bietet ein großzügiges Raumangebot mit 3 Zimmern auf einer Wohnfläche von ca. 122 m², eine andere Aufteilung wäre ebenfalls möglich
– Eine alternative Umsetzung der Raumaufteilung kann frei nach Wünschen umgesetzt werden
– Besondere Ausstattungsmerkmale wie die markante Bauweise aus echten Vollholz-Baumstämmen unterstreichen die -Wertigkeit der Immobilie in Feldberg
– Das im Jahr 2019 errichtete Gebäude präsentiert sich in einem Rohbau-Zustand und ermöglicht die Umsetzung eigener Ausbauideen
– Die durchdachte Raumaufteilung in Feldberg schafft ideale Bedingungen für Paare oder Individualisten mit hohem Platzbedarf
– Hochwertige Details wie die sichtbare Stammholz-Architektur sorgen für ein einladendes und exklusives Wohnambiente
Haben Sie Fragen zur baulichen Umsetzung oder wünschen Sie eine detaillierte Kalkulation der Fertigstellungskosten? Wir unterstützen Sie gerne mit unserer Expertise.
Sie möchte die Wohnung in bezugsfertigem Zustand erwerben? – Kein Problem, melden Sie sich ebenfalls gerne direkt bei uns.
IMMORath.de – Naturstamm-Unikat: Rohbau oder Schlüsselfertig
Kaufpreis: 315.000,00 €
Immobiliendetails
Technische Angaben
- IR1225445
- ImmoNr
Kategorie
- Wohnen
- Nutzungsart
- Kauf
- Vermarktungsart
- Wohnung
- Objektart
- Erdgeschoss
- Objekttyp
Geografische Angaben
- 79868
- PLZ
- Feldberg (Schwarzwald)
- Ort
- Deutschland
- Land
Flächen
- ca. 122 m²
- Wohnfläche
- 3
- Anzahl Zimmer
- 1
- Anzahl Badezimmer
- 1
- Anzahl sep. WC
- 2
- Anzahl Balkone
Ausstattung
Balkon
Preise
- 315.000,00 €
- Kaufpreis
- 3,57%
- Käuferprovision
Ansprechpartner:
Herr Adrian Engler
- Tel.:
- +49 17645229205
- E-Mail:
- adrian@immorath.de
Habsburgerstraße 11
79104 Freiburg im Breisgau / Herdern
Beschreibung
Grundrisse
Lage
Die Wohnung befindet sich in malerischer Lage im Herzen des Schwarzwaldes, in der charmanten Gemeinde Feldberg. Diese idyllische Umgebung ist bekannt für ihren hohen Erholungswert und ihre naturnahe Atmosphäre.
In nur etwa einem Kilometer erreichen Sie den Bahnhof Feldberg-Bärental, der Ihnen hervorragende Anbindungen an die umliegenden Städte bietet. Für den täglichen Einkauf ist ein Lidl in wenigen Minuten erreichbar, sodass der Wocheneinkauf bequem erledigt werden kann.
Für Familien bietet die Umgebung vielfältige Bildungsmöglichkeiten: Ein Kindergarten liegt etwa 2,3 Kilometer entfernt. Die nächste Grundschule befindet sich in einer Entfernung von circa 4 Kilometern, während Realschule und Gymnasium in rund 10,3 Kilometern erreichbar sind.
Die Lage des Hauses kombiniert die Ruhe und Schönheit der Natur mit der Nähe zu den Annehmlichkeiten des täglichen Lebens, hervorragender Infrastruktur und gutem Anschluss an öffentliche Verkehrsmittel. Diese attraktive Kombination macht diese Immobilie zu einer besonders reizvollen Option für sowohl junge Familien als auch Investoren.
In nur etwa einem Kilometer erreichen Sie den Bahnhof Feldberg-Bärental, der Ihnen hervorragende Anbindungen an die umliegenden Städte bietet. Für den täglichen Einkauf ist ein Lidl in wenigen Minuten erreichbar, sodass der Wocheneinkauf bequem erledigt werden kann.
Für Familien bietet die Umgebung vielfältige Bildungsmöglichkeiten: Ein Kindergarten liegt etwa 2,3 Kilometer entfernt. Die nächste Grundschule befindet sich in einer Entfernung von circa 4 Kilometern, während Realschule und Gymnasium in rund 10,3 Kilometern erreichbar sind.
Die Lage des Hauses kombiniert die Ruhe und Schönheit der Natur mit der Nähe zu den Annehmlichkeiten des täglichen Lebens, hervorragender Infrastruktur und gutem Anschluss an öffentliche Verkehrsmittel. Diese attraktive Kombination macht diese Immobilie zu einer besonders reizvollen Option für sowohl junge Familien als auch Investoren.
Sonstige Angaben
Sie haben Interesse und möchten zeitnah die Immobilie besichtigen? Kein Problem! Schicken Sie uns gerne Ihre Anfrage, Sie werden von der Immobilie begeistert sein!
Alle vom Eigentümer bereitgestellten Informationen werden als zuverlässig erachtet, aber nicht garantiert und sollten unabhängig verifiziert werden. Wir übernehmen keinerlei Gewähr für die Richtigkeit der Angaben.
Der Courtageanteil des Käufers beträgt 3,57% des tatsächlichen Kaufpreises inklusive der gesetzlichen Mehrwertsteuer.
Der Courtageanteil ist im Kaufpreis nicht enthalten und ist vom Käufer an uns zu zahlen. Er ist fällig und zahlbar bei Notariat.
Alle vom Eigentümer bereitgestellten Informationen werden als zuverlässig erachtet, aber nicht garantiert und sollten unabhängig verifiziert werden. Wir übernehmen keinerlei Gewähr für die Richtigkeit der Angaben.
Der Courtageanteil des Käufers beträgt 3,57% des tatsächlichen Kaufpreises inklusive der gesetzlichen Mehrwertsteuer.
Der Courtageanteil ist im Kaufpreis nicht enthalten und ist vom Käufer an uns zu zahlen. Er ist fällig und zahlbar bei Notariat.
Energieausweis
- 2019
- Baujahr lt. Energieausweis
- 33,1 kWh/(m²a)
- Endenergiebedarf