Zur Navigation wechseln Zum Inhalt wechseln Zum Footer wechseln
Neu

IMMORath.de – Modernisiertes Mehrfamilienhaus mit hochwertiger Ausstattung

Kaufpreis: 950.000,00 €

Immobiliendetails

Technische Angaben
IR1125415
ImmoNr
Kategorie
Wohnen
Nutzungsart
Kauf
Vermarktungsart
Haus
Objektart
Mehrfamilienhaus
Objekttyp
Geografische Angaben
79219
PLZ
Staufen
Ort
Deutschland
Land
Flächen
ca. 273 m²
Wohnfläche
ca. 13 m²
Nutzfläche
ca. 845 m²
Grundstücksgröße
11
Anzahl Zimmer
3
Anzahl Badezimmer
3
Anzahl sep. WC
1
Anzahl Balkone
2
Anzahl Terrassen
Ausstattung
Balkon Terrasse
Gas
Befeuerung
3
Etagenzahl
4 Freiplätze
Stellplätze
Preise
950.000,00 €
Kaufpreis
3,57%
Käuferprovision
Adrian Engler

Ansprechpartner:

Herr Adrian Engler

Tel.:
+49 17645229205
E-Mail:
adrian@immorath.de

Habsburgerstraße 11
79104 Freiburg im Breisgau / Herdern

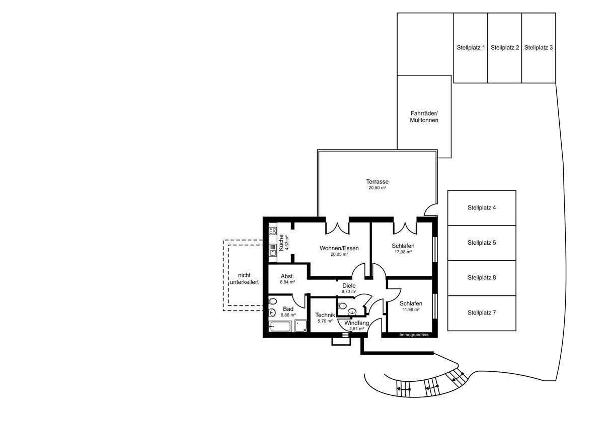
Beschreibung

– Attraktives Mehrfamilienhaus in Wettelbrunn bei Staufen
– Baujahr 1964, umfassend modernisiert
– Grundstücksgröße: ca. 845 m², Wohnfläche: ca. 273 m², Nutzfläche: ca. 13 m²
– Wohnraumlüfter mit Energierückgewinnung in allen Etagen
– Drei Wohneinheiten, insgesamt 11 Zimmer und 3 Badezimmer
– Souterrain-WE: 3 Zimmer, Küche, Bad, Gäste-WC, separater Eingang, Terrasse
– Erdgeschoss-WE: 4 Zimmer, Wintergarten, offene Küche, Bad, Gäste-WC, Terrasse
– Obergeschoss-WE: 4 Zimmer, Balkon, offene Küche, Bad, Gäste-WC
– Obergeschoss 2010 neu aufgesetzt in moderner Holzbauweise
– Gasheizung von 2010 und PV-Anlage mit Einspeisevergütung
– Hochwertige Ausstattung, darunter Parkettböden und Fliesen
– Ruhige Lage mit guter Anbindung
– Fahrradstellplatz vorhanden

Sprechen Sie uns an für weitere Informationen und Unterlagen!

Lage

Dieses charmante Mehrfamilienhaus befindet sich in der schönen Umgebung von Staufen im Breisgau, eingebettet in eine ruhige und zugleich gut angebundene Lage. Die Immobilie bietet Ihnen drei Wohneinheiten.

Die Nähe zum hübschen Städtchen Staufen im Breisgau mit seinen vielseitigen Einkaufsmöglichkeiten, in nur etwa 5 Kilometern Entfernung, ermöglicht es Ihnen, den Alltag sowohl effizient als auch angenehm zu gestalten. Hier befinden sich auch ein Kindergarten und weitere Bildungseinrichtungen, wie Grund- und Realschule sowie ein Gymnasium. Darüber hinaus sind wichtige Gesundheitseinrichtungen wie Arztpraxen und Apotheken ebenfalls gut erreichbar.

Eine gute Verkehrsanbindung wird durch die nahe gelegene Bushaltestelle gewährleistet, die sich nur 450 Meter vom Haus entfernt befindet.

Genießen Sie das idyllische Flair von Staufen im Breisgau, einer Region, die für ihre beeindruckenden Weinberge und ihre historische Altstadt bekannt ist, und gönnen Sie sich ein Zuhause, das Ruhe, Natur und Komfort harmonisch vereint.

Sonstige Angaben

Sie haben Interesse und möchten zeitnah die Immobilie besichtigen? Kein Problem! Schicken Sie uns gerne Ihre Anfrage, Sie werden von der Immobilie begeistert sein!

Alle vom Eigentümer bereitgestellten Informationen werden als zuverlässig erachtet, aber nicht garantiert und sollten unabhängig verifiziert werden. Wir übernehmen keinerlei Gewähr für die Richtigkeit der Angaben.

Der Courtageanteil des Käufers beträgt 3,57% des tatsächlichen Kaufpreises inklusive der gesetzlichen Mehrwertsteuer.
Der Courtageanteil ist im Kaufpreis nicht enthalten und ist vom Käufer an uns zu zahlen. Er ist fällig und zahlbar bei Notariat.

Energieausweis

A+
< 30
A
30 – 50
B
50 – 75
C
75 – 100
D
100 – 130
E
130 – 160
F
160 – 200
G
200 – 250
H
> 250
2010
Baujahr lt. Energieausweis
79,2 kWh/(m²a)
Endenergieverbrauch
Verbrauchsausweis
Energieausweis
03.12.2035
Energieausweis gültig bis
C
Energieeffizienzklasse
Gas
wesentlicher Energieträger

Ihre Anfrage zu der Immobilie „IMMORath.de – Modernisiertes Mehrfamilienhaus mit hochwertiger Ausstattung“ (IR1125415)

Ihre Kontaktdaten

* Pflichtfelder

Weitere Immobilien

IMMORath.de – Zwei Wohnhäusern mit fünf Wohnungen und großzügigen Terrassen

Bad Krozingen 79189
1.750.000,00 € Kaufpreis
IR0824225
ImmoNr
Haus
Objektart
Zweifamilienhaus
Objekttyp
Kauf
Vermarktungsart
12
Anzahl Zimmer
ca. 368 m²
Grundstücksgröße
ca. 310 m²
Wohnfläche
Zur Detailansicht

IMMORath.de – Einfamilienhaus im Grünen mit Doppelgarage

Staufen im Breisgau 79219
849.000,00 € Kaufpreis
IR0725346
ImmoNr
Haus
Objektart
Zweifamilienhaus
Objekttyp
Kauf
Vermarktungsart
6
Anzahl Zimmer
ca. 480 m²
Grundstücksgröße
ca. 155 m²
Wohnfläche
Zur Detailansicht

IMMORath.de – Mehrfamilienhaus in ruhiger Lage mit solider Rendite

Müllheim 79379
998.000,00 € Kaufpreis
IR1025377
ImmoNr
Haus
Objektart
Mehrfamilienhaus
Objekttyp
Kauf
Vermarktungsart
14
Anzahl Zimmer
ca. 1.218 m²
Grundstücksgröße
ca. 360 m²
Wohnfläche
Zur Detailansicht

IMMORath.de – Großzügiges Anwesen – sofort bezugsfrei!

Müllheim 79379
975.000,00 € Kaufpreis
IR1125412
ImmoNr
Haus
Objektart
Einfamilienhaus
Objekttyp
Kauf
Vermarktungsart
6
Anzahl Zimmer
ca. 1.352 m²
Grundstücksgröße
ca. 187 m²
Wohnfläche
Zur Detailansicht

IMMORath.de – Moderne Immobilie mit Einliegerwohnung, Wärmepumpe und PV-Anlage

Müllheim 79379
980.000,00 € Kaufpreis
IR1125414
ImmoNr
Haus
Objektart
Einfamilienhaus
Objekttyp
Kauf
Vermarktungsart
9
Anzahl Zimmer
ca. 672 m²
Grundstücksgröße
ca. 300 m²
Wohnfläche
Zur Detailansicht

Auch Sie möchten Ihre Immobilie mit IMMORath verkaufen

Dann zögern Sie nicht, uns zu kontaktieren, um einen kostenlosen Vor-Ort-Termin zu vereinbaren!

📞 Rufen Sie uns an unter

+49 (0)175 56 19 155