Zur Navigation wechseln Zum Inhalt wechseln Zum Footer wechseln

IMMORath.de – Moderne Immobilie mit Einliegerwohnung, Wärmepumpe und PV-Anlage

ImmoNr
IR1125414
Vermarktungsart
Kauf
Objektart
Haus
Objekttyp
Einfamilienhaus
PLZ
79379
Ort
Müllheim
Land
Deutschland
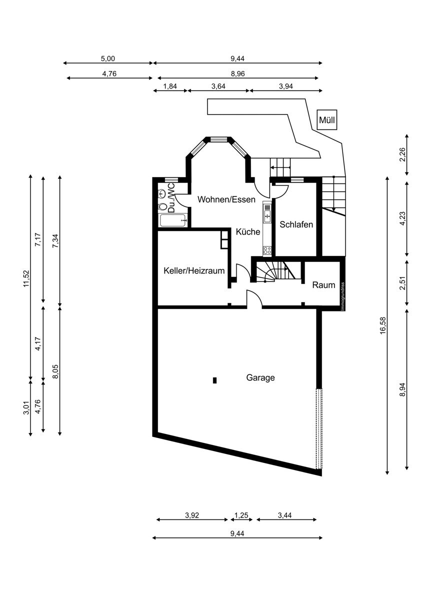
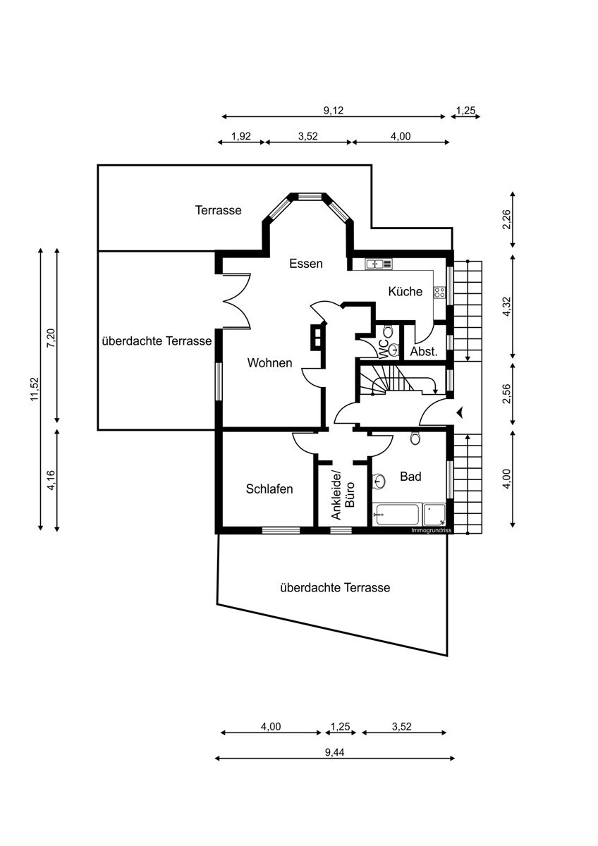
Wohnfläche
ca. 300 m²
Grundstücksgröße
ca. 672 m²
Anzahl Zimmer
9
Anzahl Badezimmer
3
Anzahl sep. WC
2
Anzahl Balkone
2
Anzahl Terrassen
3
Balkon
Ja
Befeuerung
Holz, Luft/Wasser Wärmepumpe, Solar
Etagenzahl
3
Stellplätze
2 Garagen
Terrasse
Ja
Kaufpreis
980.000,00 €
Käuferprovision
3,57%

Zur Immobilie

Wunderschönes Einfamilienhaus mit Einliegerwohnung in Müllheim zu verkaufen

– Baujahr 2002, in modernisiertem Zustand
– Großzügiges Grundstück mit ca. 672 m² Fläche
– Gepflegtes Haus mit ca. 300 m² Wohnfläche
– Insgesamt 9 Zimmer und 3 Badezimmer
– Gemütlicher Kamin und Holzofen für warme Abende
– Neue, effiziente Wärmepumpe installiert in 2024
– zusätzliche Fläche im Dachstudio für eine individuelle Nutzung
– Attraktive Außenbereiche: Terrassen und Balkone vorhanden
– Große Garage bietet viel Platz für Fahrzeuge und mehr
– Flexible Übergabe: Frei nach Absprache

Erleben Sie modernes Wohnen mit viel Platz und Komfort in ruhiger Lage!

A+
< 30
A
30 – 50
B
50 – 75
C
75 – 100
D
100 – 130
E
130 – 160
F
160 – 200
G
200 – 250
H
> 250
Nutzungsart
Wohnen
Baujahr lt. Energieausweis
2002
Endenergiebedarf
44,51 kWh/(m²a)
Energieausweis
Bedarfsausweis
Energieausweis gültig bis
14.07.2035
Energieeffizienzklasse
A
wesentlicher Energieträger
Holz

Das charmante Einfamilienhaus befindet sich in einer begehrten Wohnlage von Müllheim, einer hübschen Stadt im Herzen des Markgräflerlands. Die vorteilhafte Lage nur etwa 500 Meter vom Stadtzentrum entfernt bietet eine ideale Mischung aus Ruhe und zentraler Erreichbarkeit. Alle Annehmlichkeiten des täglichen Bedarfs sind in kürzester Distanz zu erreichen: Einkaufsmöglichkeiten liegen nur 350 Meter entfernt, während Ärzte und Apotheken innerhalb eines Kilometer-Radius verfügbar sind.

Für Familien mit Kindern ist die Nähe zu Bildungseinrichtungen ein weiterer Vorteil: Ein Kindergarten sowie Grund-, Realschule und Gymnasium sind in einem Umkreis von etwa 1,3 Kilometern gelegen. Das ausgebaute Verkehrsnetz sorgt zudem für bequeme Anbindungen. Eine Bushaltestelle befindet sich in nur 220 Metern Entfernung, und auch der Bahnhof von Müllheim ist mit einer Distanz von 2,5 Kilometern gut erreichbar.

Neben der gegebenen Infrastruktur profitieren Sie von der unmittelbaren Nähe zur Natur und dem Dreiländereck, das zu abwechslungsreichen Ausflügen in die benachbarte Schweiz und nach Frankreich einlädt. Die Wohnlage vereint somit die angenehme Atmosphäre einer Kleinstadt mit der Möglichkeit, urbanen und internationalen Flair in unmittelbarer Reichweite zu erleben.

Sie haben Interesse und möchten zeitnah die Immobilie besichtigen? Kein Problem! Schicken Sie uns gerne Ihre Anfrage, Sie werden von der Immobilie begeistert sein!

Alle vom Eigentümer bereitgestellten Informationen werden als zuverlässig erachtet, aber nicht garantiert und sollten unabhängig verifiziert werden. Wir übernehmen keinerlei Gewähr für die Richtigkeit der Angaben.

Der Courtageanteil des Käufers beträgt 3,57% des tatsächlichen Kaufpreises inklusive der gesetzlichen Mehrwertsteuer.
Der Courtageanteil ist im Kaufpreis nicht enthalten und ist vom Käufer an uns zu zahlen. Er ist fällig und zahlbar bei Notariat.

Ihr Ansprechpartner

Adrian Engler

Herr Adrian Engler

Tel.:
+49 17645229205
E-Mail:
adrian@immorath.de

Habsburgerstraße 11
79104 Freiburg im Breisgau / Herdern

Weitere Immobilien

79219 Staufen im Breisgau

IMMORath.de – Einfamilienhaus im Grünen mit Doppelgarage

ImmoNr
IR0725346
Objektart
Haus
Objekttyp
Zweifamilienhaus
Vermarktungsart
Kauf
Anzahl Zimmer
6
Grundstücksgröße
ca. 480 m²
Wohnfläche
ca. 155 m²

79379 Müllheim

IMMORath.de – Kapitalanlage: Mehrfamilienhaus mit Baugrundstück

ImmoNr
IR1025377
Objektart
Haus
Objekttyp
Mehrfamilienhaus
Vermarktungsart
Kauf
Anzahl Zimmer
14
Grundstücksgröße
ca. 1.218 m²
Wohnfläche
ca. 360 m²

79379 Müllheim

IMMORath.de – Großzügiges Anwesen – sofort bezugsfrei!

ImmoNr
IR1125412
Objektart
Haus
Objekttyp
Einfamilienhaus
Vermarktungsart
Kauf
Anzahl Zimmer
6
Grundstücksgröße
ca. 1.352 m²
Wohnfläche
ca. 187 m²

79219 Staufen

IMMORath.de – Modernisiertes Mehrfamilienhaus mit hochwertiger Ausstattung

ImmoNr
IR1125415
Objektart
Haus
Objekttyp
Mehrfamilienhaus
Vermarktungsart
Kauf
Anzahl Zimmer
11
Grundstücksgröße
ca. 845 m²
Wohnfläche
ca. 273 m²

    Ihre Anfrage zu der Immobilie „IMMORath.de – Moderne Immobilie mit Einliegerwohnung, Wärmepumpe und PV-Anlage“ (IR1125414)

    * Pflichtfelder

    Auch Sie möchten Ihre Immobilie mit IMMORath verkaufen

    Dann zögern Sie nicht, uns zu kontaktieren, um einen kostenlosen Vor-Ort-Termin zu vereinbaren!

    📞 Rufen Sie uns an unter

    +49 (0)175 56 19 155