Zur Navigation wechseln Zum Inhalt wechseln Zum Footer wechseln

IMMORath.de – Rohbau mit Potenzial: Schaffen Sie Ihr Traum-Zuhause!

ImmoNr
IR0425320
Vermarktungsart
Kauf
Objektart
Wohnung
Objekttyp
Maisonette
PLZ
77955
Ort
Ettenheim
Land
Deutschland
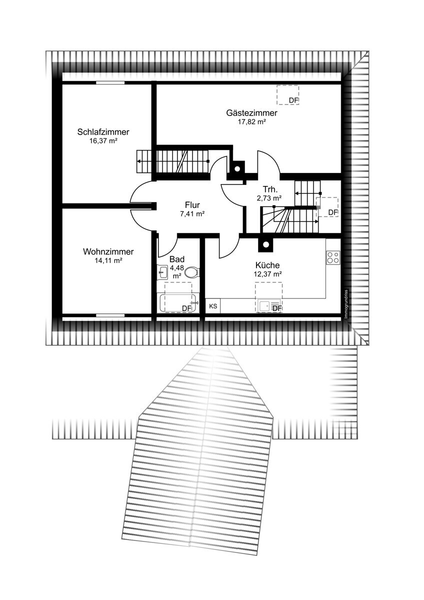
Wohnfläche
ca. 101 m²
Anzahl Zimmer
5
Befeuerung
Pelletheizung
Kaufpreis
190.000,00 €
Käuferprovision
3,57%

Zur Immobilie

– Großzügige 5-Zimmer-Maisonettewohnung im Rohbauzustand, ideal für individuelle Gestaltung
– Attraktive Lage in Ettenheim-Münchweier, im Obergeschoss eines Mehrfamilienhauses mit drei Einheiten
– Voraussichtlich ca. 100 m² Wohnfläche bieten ausreichend Platz zur Verwirklichung Ihrer Wohnträume
– Profitieren Sie von den bereits erledigten Vorarbeiten: Die Wohnung wurde 2023 vollständig entkernt, neue Dachfenster wurden eingebaut und das Dach ist gedämmt
– Die Vorbereitung für Wasser- und Heizungsleitungen sowie die Installation sanitärer Vorwandelemente sind bereits erfolgt
– Eine neue Pelletsheizung (Installation im Jahr 2023) sorgt für eine zukunftssichere und umweltfreundliche Wärmeversorgung
– Es besteht die Möglichkeit, eine günstige Finanzierung zu übernehmen, was den Start in Ihr Renovierungsprojekt erleichtert
– Der Innenausbau kann frei nach Ihren Wünschen und Vorstellungen gestaltet werden
– Ein Kellerabteil bietet zusätzlichen Stauraum

Nutzen Sie diese einmalige Gelegenheit, um Ihr Traumzuhause in einer attraktiven Lage zu schaffen.

A+
< 30
A
30 – 50
B
50 – 75
C
75 – 100
D
100 – 130
E
130 – 160
F
160 – 200
G
200 – 250
H
> 250
Nutzungsart
Wohnen
Baujahr lt. Energieausweis
1900
Endenergiebedarf
221,3 kWh/(m²a)
Energieausweis
Bedarfsausweis
Energieausweis gültig bis
19.12.2034
Energieeffizienzklasse
G
wesentlicher Energieträger
Pellet

Die Maisonette-Wohnung befindet sich in der charmanten südlichen Stadt Ettenheim, die Teil der wunderschönen Ortenau ist. Ettenheim zeichnet sich durch seine malerischen Gässchen und bezaubernden Fachwerkhäuser aus, was der Stadt ein einzigartiges und historisches Flair verleiht. Die Umgebung ist ideal für Familien, da sie sich durch eine starke Gemeinschaft und vielfältige Freizeitmöglichkeiten auszeichnet.

Die Innenstadt von Ettenheim ist nur etwa 3,7 Kilometer entfernt und bietet zahlreiche Einkaufsmöglichkeiten, Restaurants und kulturelle Einrichtungen. Für Pendler und Reisende ist die Anbindung an die Autobahn in ca. 12,4 Kilometer gut erreichbar, was eine unkomplizierte Verbindung zu größeren Städten gewährleistet.

Für Familien mit Kindern ist die Nähe zu Bildungseinrichtungen besonders attraktiv. Ein Kindergarten und eine Grundschule befinden sich in einer Entfernung von lediglich 450 Metern, was kurze Wege und große Flexibilität im Alltag ermöglicht. Auch weiterführende Schulen wie eine Realschule in etwa 4 Kilometer und ein Gymnasium in circa 3,8 Kilometer Entfernung sind schnell zu erreichen.

Die Lage dieser Wohnung eignet sich ideal für all jene, die ein gemütliches und familienfreundliches Umfeld suchen, ohne auf die Annehmlichkeiten einer gut entwickelten Infrastruktur verzichten zu müssen.

Ihr Ansprechpartner

Nicola Sabatino

Herr Nicola Sabatino

Tel.:
+49 (0) 176 569 16 224
E-Mail:
nicola@immorath.de

Habsburgerstraße 11
79104 Freiburg im Breisgau

Ihre Anfrage zu der Immobilie „IMMORath.de – Rohbau mit Potenzial: Schaffen Sie Ihr Traum-Zuhause!“ (IR0425320)

* Pflichtfelder

Auch Sie möchten Ihre Immobilie mit IMMORath verkaufen

Dann zögern Sie nicht, uns zu kontaktieren, um einen kostenlosen Vor-Ort-Termin zu vereinbaren!

📞 Rufen Sie uns an unter

+49 (0)175 56 19 155