Zur Navigation wechseln Zum Inhalt wechseln Zum Footer wechseln

IMMORath.de – Wohnhaus mit Gewerbeanteil – und vielen Möglichkeiten

ImmoNr
IR1224254
Vermarktungsart
Kauf
Objektart
Haus
Objekttyp
Wohn- und Geschäftshaus
PLZ
77933
Ort
Lahr
Land
Deutschland
Wohnfläche
ca. 160 m²
Nutzfläche
ca. 186 m²
Grundstücksgröße
ca. 853 m²
Anzahl Zimmer
6
Anzahl Badezimmer
2
Anzahl Balkone
1
Balkon
Ja
Befeuerung
Öl, Holz
Etagenzahl
3
Kaufpreis
519.000,00 €
Käuferprovision
3,57%

Zur Immobilie

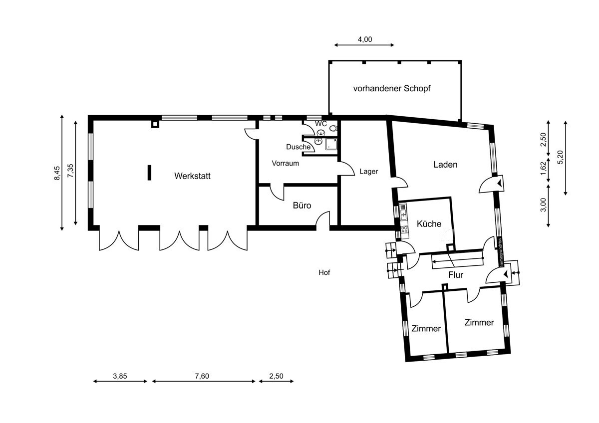
– Wohn- und Geschäftshaus in zentraler Lage von Lahr-Reichenbach
– Baujahr 1938, gepflegter Zustand
– Grundstücksgröße: ca. 853 m²
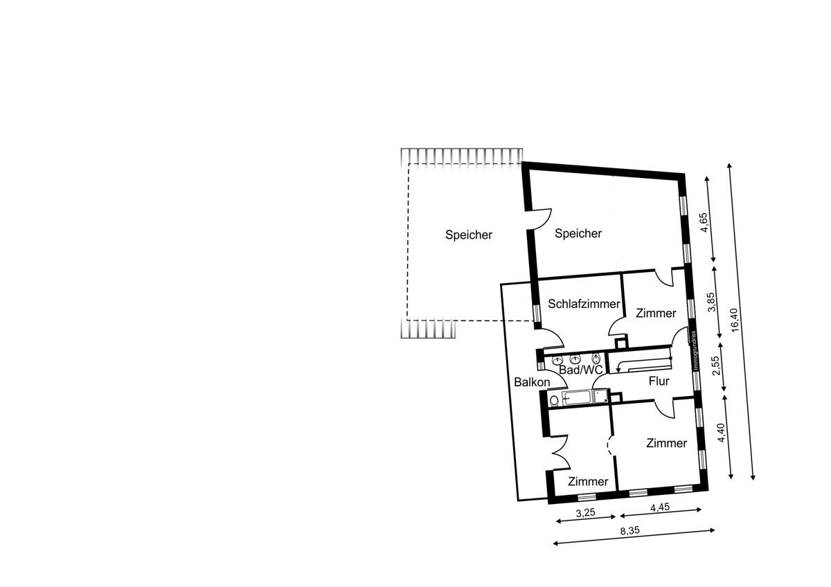
– Wohnfläche: ca. 160 m²
– Gewerbefläche ca. 166 m ²
– Nutzfläche: ca. 20 m ²
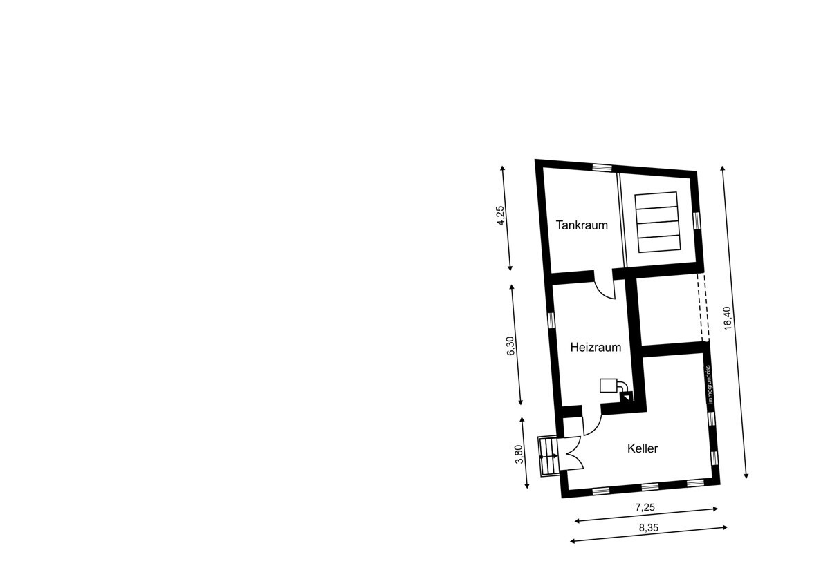
– Teilweise unterkellert für zusätzlichen Stauraum
– Balkon für entspannte Stunden im Freien und viel Platz im gepflasterten Hof
– Diverse Nutzungsmöglichkeiten durch Wohneinheit im Vorderhaus und gewerblich genutzten Teil
– Ladenfläche, Werkstatt/Lager und Büro im Seitenflügel bieten Potenzial für Geschäftszwecke
– Großer Speicher für vielseitige Verwendung und Ausbaupotenzialen
– Übergabe frei nach Absprache, bezugsfrei zum Verkaufszeitpunkt
– Ideal für Investoren oder Selbstnutzer mit Fokus auf kombinierte Wohn- und Geschäftsnutzung

Entdecken Sie die einzigartigen Potenziale dieses Grundstücks! Wir präsentieren Ihnen drei attraktive Optionen für die zukünftige Nutzung:

Option 1: Umbau zum modernen Mehrfamilienhaus mit Gewerbeanteil
Nutzen Sie die Chance, das aktuelle Wohnhaus ein zeitgemäßes Mehrfamilienhaus umzuwandeln. Diese Option kombiniert Wohnraum mit einem Gewerbeanteil und schafft so eine lebendige Nachbarschaft.

Option 2: Teilsanierung des Geschäftshauses mit Neubau auf dem Gewerbeteil
Bringen Sie frischen Wind in das bestehende Wohnhaus! Diese Option bietet die Möglichkeit einer Teilsanierung, während gleichzeitig auf der Gewerbefläche ein moderner Neubau entsteht. Die Besonderheit: Grenzbebauung zur Schindelstraße ist möglich, was Ihnen Flexibilität und zusätzliche Flächen bietet. Kombinieren Sie Altbewährtes mit Neuem und schaffen Sie ein harmonisches Gesamtbild.

Option 3: Komplettneuprojektierung der Gesamtfläche
Gestalten Sie Ihre Vision mit dieser umfassenden Neuprojektierung! Diese Option ermöglicht eine vollständige Neubebauung der Gesamtfläche, wobei Sie alle modernen Standards und nachhaltigen Baupraktiken berücksichtigen können. Die Möglichkeit der Grenzbebauung zur Schindelstraße eröffnet Ihnen innovative Gestaltungsspielräume. Setzen Sie Ihre Ideen in die Tat um und schaffen Sie ein herausragendes Projekt, das neue Maßstäbe setzt.

A+
< 30
A
30 – 50
B
50 – 75
C
75 – 100
D
100 – 130
E
130 – 160
F
160 – 200
G
200 – 250
H
> 250
Nutzungsart
Wohnen
Baujahr lt. Energieausweis
1938
Endenergieverbrauch
85,2 kWh/(m²a)
Energieausweis
Verbrauchsausweis
Energieausweis gültig bis
15.01.2035
Energieeffizienzklasse
C
wesentlicher Energieträger
Öl

Das charmante Wohn- und Geschäftshaus befindet sich in Lahr, eingebettet in eine angenehme Nachbarschaft, die urbanes Leben in Harmonie mit der Natur vereint. Das Zentrum von Lahr ist nur etwa 4,5 Kilometer entfernt und lädt mit seinen kulturellen und kulinarischen Angeboten zu entspannten Ausflügen ein. Die gute Anbindung an die Autobahn, die in nur 11 Kilometern erreichbar ist, ermöglicht eine schnelle und unkomplizierte Verbindung in alle Richtungen.

Für Familien besonders attraktiv sind die nahe liegenden Bildungs- und Betreuungseinrichtungen. Ein Kindergarten liegt in einer Entfernung von lediglich 650 Metern, während Grundschule, Realschule und Gymnasium ebenfalls bequem zu erreichen sind, in einem Radius von maximal 4 Kilometern. Diese Umgebung bietet nicht nur eine optimale Bildungslandschaft, sondern schafft auch ein sicheres und kindgerechtes Umfeld.

Der Standort überzeugt durch seine ruhige, gleichzeitig aber auch sehr gut durchdachte Infrastruktur, die den Anforderungen moderner Lebensqualität in jeder Hinsicht gerecht wird. Alle nötigen Dienstleistungen des täglichen Bedarfs sind in unmittelbarer Nähe verfügbar, was den Standort sowohl für Familien als auch für Berufstätige äußerst attraktiv macht. Erleben Sie die perfekte Balance zwischen komfortablem Wohnen und wirtschaftlicher Nützlichkeit in dieser gefragten Lage.

Sie haben Interesse und möchten zeitnah die Immobilie besichtigen? Kein Problem! Schicken Sie uns gerne Ihre Anfrage, Sie werden von der Immobilie begeistert sein!

Alle vom Eigentümer bereitgestellten Informationen werden als zuverlässig erachtet, aber nicht garantiert und sollten unabhängig verifiziert werden. Wir übernehmen keinerlei Gewähr für die Richtigkeit der Angaben.

Der Courtageanteil des Käufers beträgt 3,57% des tatsächlichen Kaufpreises inklusive der gesetzlichen Mehrwertsteuer.
Der Courtageanteil ist im Kaufpreis nicht enthalten und ist vom Käufer an uns zu zahlen. Er ist fällig und zahlbar bei Notariat.

Ihr Ansprechpartner

Manuel Schneider

Herr Manuel Schneider

Tel.:
+49 177 9641549
E-Mail:
manuel@immorath.de

Habsburgerstraße 11
79104 Freiburg im Breisgau

Weitere Immobilien

77933 Lahr/Schwarzwald

IMMORath.de – Einfamilienhaus mit Einliegerwohnung

ImmoNr
IR0425321
Objektart
Haus
Objekttyp
Einfamilienhaus
Vermarktungsart
Kauf
Anzahl Zimmer
8
Grundstücksgröße
ca. 265 m²
Wohnfläche
ca. 221 m²

77948 Friesenheim / Schuttern

IMMORath.de – Gepflegtes Mehrfamilienhaus mit Gewerbe – und Wohnraum für individuelle Gestaltung

ImmoNr
IR1025385
Objektart
Haus
Objekttyp
Wohn- und Geschäftshaus
Vermarktungsart
Kauf
Anzahl Zimmer
9
Grundstücksgröße
ca. 382 m²
Wohnfläche
ca. 342 m²

    Ihre Anfrage zu der Immobilie „IMMORath.de – Wohnhaus mit Gewerbeanteil – und vielen Möglichkeiten“ (IR1224254)

    * Pflichtfelder

    Auch Sie möchten Ihre Immobilie mit IMMORath verkaufen

    Dann zögern Sie nicht, uns zu kontaktieren, um einen kostenlosen Vor-Ort-Termin zu vereinbaren!

    📞 Rufen Sie uns an unter

    +49 (0)175 56 19 155